INTD 266-Digital Communication- Visual Multi-Media

Visual communication using design software applications and multi-media techniques for expressing design ideas for interior architecture and design.

Based on the objective for the course and inspired by past work I developed materials for the semester project. The goal was to work through one primary project from beginning to end.

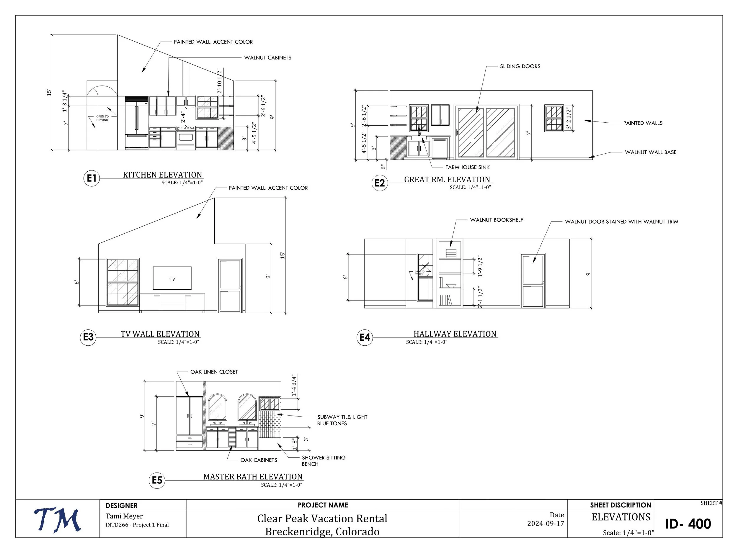
Starting with the use of Bluebeam to measure and re-create the shell of a building/Home from a PDF. They then created this drawing in AutoCAD using both Model and paper space with the final product being a small set of construction documents. They then started to work with illustrator & Photoshop, to create rendered floor plans, site plans. The students then took this plan and put it into Sketch-Up. After modeling the home in 3D, they then developed the couple of interior spaces and utilized Enscape for vivid renderings of both interior and exterior design.

The final project for the semester was a poster showcasing all the pieces of their project. Utilizing InDesign for the first time, we explored setting up gridlines & organization of information. The students thought about design cohesiveness, scale and proportion of elements

Previous
Previous

INTD 251 Fall 2024

Next
Next

INTD 276 Spring 2024